184 Broadway - Unit 2 - 2nd and 3rd Floor (2 Dubois) , Newburgh, NY 12550
184 Broadway - Unit 2 - 2nd and 3rd Floor (2 Dubois) , Newburgh, NY 12550
Renovated Office Space Available ONE MONTH FREE RENT WITH THREE YEAR LEASE
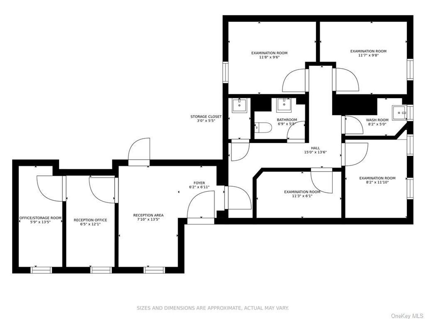
This office location is located on a key corner lot on Broadway. For many years, this was a busy healthcare practice and, more recently office space. It has been fully renovated and includes a reception area with five (5) private suites, of which three have sinks installed. This space is two stories with partial central air and a private entrance separate from the business downstairs. It also includes a full kitchen. This property is right down the block from Montefiore St. Luke's Hospital. ONE MONTH FREE RENT WITH A THREE-YEAR LEASE.
Since this property is located in Downtown Newburgh, there are many amenities close by. Including charming shops, restaurants, and cafes on the Liberty St corridor, featuring local eateries such as; Ms. Fairfax, Betty's Snack Bar, The Wherehouse, & Cafe Little Treasure. You'll also find a vibrant nightlife scene with bars like; Untouchables, Newburgh Brewing Company, & 190 Bar. Within the downtown area you can also find Downing Park, built by Central Park architect Calvert Vaux, as well as, SUNY Orange, Mount St. Mary's College, galleries, studio rentals, bodegas, a great library, & George Washington Historical Park. The Newburgh Waterfront with all of its restaurants is just a short walk away. Also New York Stewart International Airport is right outside of town!
Since this property is located in Downtown Newburgh, there are many amenities close by. Including charming shops, restaurants, and cafes on the Liberty St corridor, featuring local eateries such as; Ms. Fairfax, Betty's Snack Bar, The Wherehouse, & Cafe Little Treasure. You'll also find a vibrant nightlife scene with bars like; Untouchables, Newburgh Brewing Company, & 190 Bar. Within the downtown area you can also find Downing Park, built by Central Park architect Calvert Vaux, as well as, SUNY Orange, Mount St. Mary's College, galleries, studio rentals, bodegas, a great library, & George Washington Historical Park. The Newburgh Waterfront with all of its restaurants is just a short walk away. Also New York Stewart International Airport is right outside of town!
Contact us:














